
two hundred Green
Thiensville, Wisconsin

New Construction, Single-family Homes Available at two hundred Green in Thiensville!
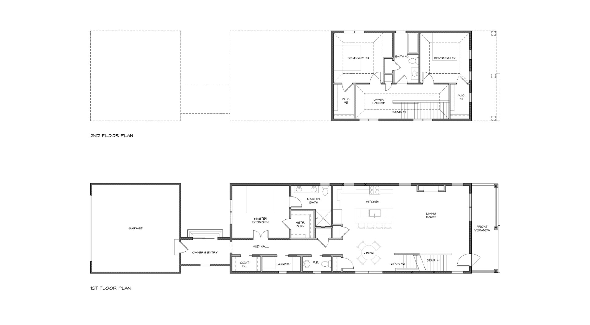
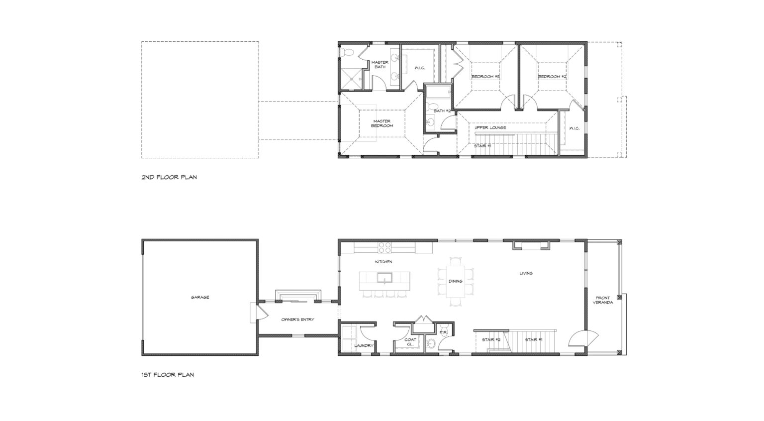
Whether you’re ready to move up in the world or downsize – two hundred Green welcomes you. These new construction homes with first and second floor master suite options are AVAILABLE! They have been thoughtfully designed for modern style in a neighborhood created with an emphasis on community and walkability.
These Lakeside Development designed homes are approximately 2,000 square feet and conveniently located in one of the most desirable and vibrant areas of Thiensville!
The neighborhood will consist of 16 homes and is being built on the corner of Green Bay Road and Riverview Drive. We offer first and second floor primary bedroom options and an additional half-bath. The second floor has the two additional bedrooms and another full bath. A lower level bedroom and bath is optional. They are priced in the $700,000s. Come see two hundred Green’s Model Home at The Residence at Foxtown in Mequon’s Town Center.
These Lakeside Development designed homes are approximately 2,000 square feet and conveniently located in one of the most desirable and vibrant areas of Thiensville!
The neighborhood will consist of 16 homes and is being built on the corner of Green Bay Road and Riverview Drive. We offer first and second floor primary bedroom options and an additional half-bath. The second floor has the two additional bedrooms and another full bath. A lower level bedroom and bath is optional. They are priced in the $700,000s. Come see two hundred Green’s Model Home at The Residence at Foxtown in Mequon’s Town Center.


Floor Plans
Virtual Tour

